Tên dự án: Thiết kế và thi công nhà thờ tổ (Từ đường họ).
Địa điểm: Thị xã Phú Mỹ, Tỉnh Bà Rịa - Vũng Tàu.
Quy mô kiến trúc: Nhà thờ 3 gian truyền thống Bắc Bộ.
Đơn vị thiết kế & thi công: Công ty Thiết kế Xây dựng Thiên Anh.
Nhà thờ tổ (hay nhà từ đường) không chỉ là một công trình kiến trúc mà còn là chốn tâm linh thiêng liêng, nơi lưu giữ những giá trị truyền thống, thể hiện lòng thành kính và đạo lý "uống nước nhớ nguồn" của con cháu đối với ông bà tổ tiên. Vừa qua, Xây dựng Thiên Anh vinh dự được gia chủ tại Phú Mỹ, Bà Rịa - Vũng Tàu tin tưởng giao phó trọng trách thiết kế hồ sơ kiến trúc và kết cấu cho công trình nhà thờ họ 3 gian đậm chất truyền thống nhưng vẫn đảm bảo sự bền bỉ, tối ưu cho nhịp sống hiện đại.
Tên dự án: Thiết kế và thi công nhà thờ tổ (Từ đường họ).
Địa điểm: Thị xã Phú Mỹ, Tỉnh Bà Rịa - Vũng Tàu.
Quy mô kiến trúc: Nhà thờ 3 gian truyền thống Bắc Bộ.
Đơn vị thiết kế: Công ty Thiết kế Xây dựng Thiên Anh.

Nhìn vào phối cảnh 3D, công trình toát lên vẻ đẹp trang nghiêm, bề thế và thanh tịnh, vô cùng phù hợp với không gian thờ cúng linh thiêng.
Kiến trúc mái đỏ truyền thống: Công trình sử dụng hệ mái dốc lợp ngói vảy cá màu đỏ mộc mạc. Bờ nóc và bờ dải được đắp vẽ các chi tiết kìm nóc, vân mây nhẹ nhàng, vừa giữ được nét cổ kính, thanh thoát vừa không tạo cảm giác quá rườm rà.
Hệ cột đồng trụ uy nghi: Hai bên tả hữu của sảnh chính là hệ cột đồng trụ bằng đá vươn cao, đỉnh cột đắp chi tiết lửa thiêng vượng khí. Đây là hạng mục phong thủy quan trọng, được ví như hai ngọn đuốc xua đuổi tà khí, bảo vệ chốn linh thiêng của dòng họ.
Bức vách chữ "Phúc" lớn: Điểm nhấn đặc biệt nằm ở mảng tường bên hông. Một vòng tròn với chữ "Phúc" (đường kính lên đến 1.6m) được đắp nổi trang trọng. Chi tiết này không chỉ mang tính thẩm mỹ cao mà còn gửi gắm lời chúc phúc lộc, bình an, vạn sự tốt lành đến muôn đời con cháu.
Khuôn viên sân vườn: Khoảng sân trước rộng rãi được lát gạch gốm đỏ tone-sur-tone với màu ngói, kết hợp cùng hệ thống cây cảnh (tùng, sanh...) và tường rào con tiện xi măng, tạo nên một không gian mở thoáng đãng, yên bình.
.jpg)
Dựa trên mặt bằng tầng 01, đội ngũ kiến trúc sư của Xây dựng Thiên Anh đã tính toán kỹ lưỡng để tối ưu hóa không gian thờ tự trên diện tích vừa phải, đảm bảo đúng chuẩn thước Lỗ Ban.
Không gian 3 gian mở: Tổng chiều ngang xây dựng là 6.3m, chiều sâu 4.7m. Gian chính giữa (Gian thờ) có diện tích khoảng 18m2, là nơi đặt bàn thờ tổ tiên trung tâm. Hai gian hai bên đóng vai trò là nơi sắp lễ, nghênh khách hoặc mở rộng không gian hành lễ trong những dịp giỗ chạp quan trọng.
Bậc tam cấp: Thiết kế bậc tam cấp dẫn lên sảnh chính giúp tôn chiều cao công trình, chống ngập úng hiệu quả và mang ý nghĩa phong thủy tốt lành.
Vật liệu cửa nhôm Xingfa hiện đại: Một điểm sáng tạo mang tính thực tế cao trong dự án này là việc sử dụng hệ cửa đi nhôm Xingfa cao cấp (nhôm hệ vân gỗ hoặc nâu tĩnh điện). Thay vì dùng cửa gỗ 100% dễ bị cong vênh, mối mọt bởi thời tiết nắng gió đặc trưng tại BRVT, cửa nhôm Xingfa đảm bảo độ bền bỉ vượt thời gian, đóng mở nhẹ nhàng và giúp không gian bên trong luôn ngập tràn ánh sáng tự nhiên.
.jpg)
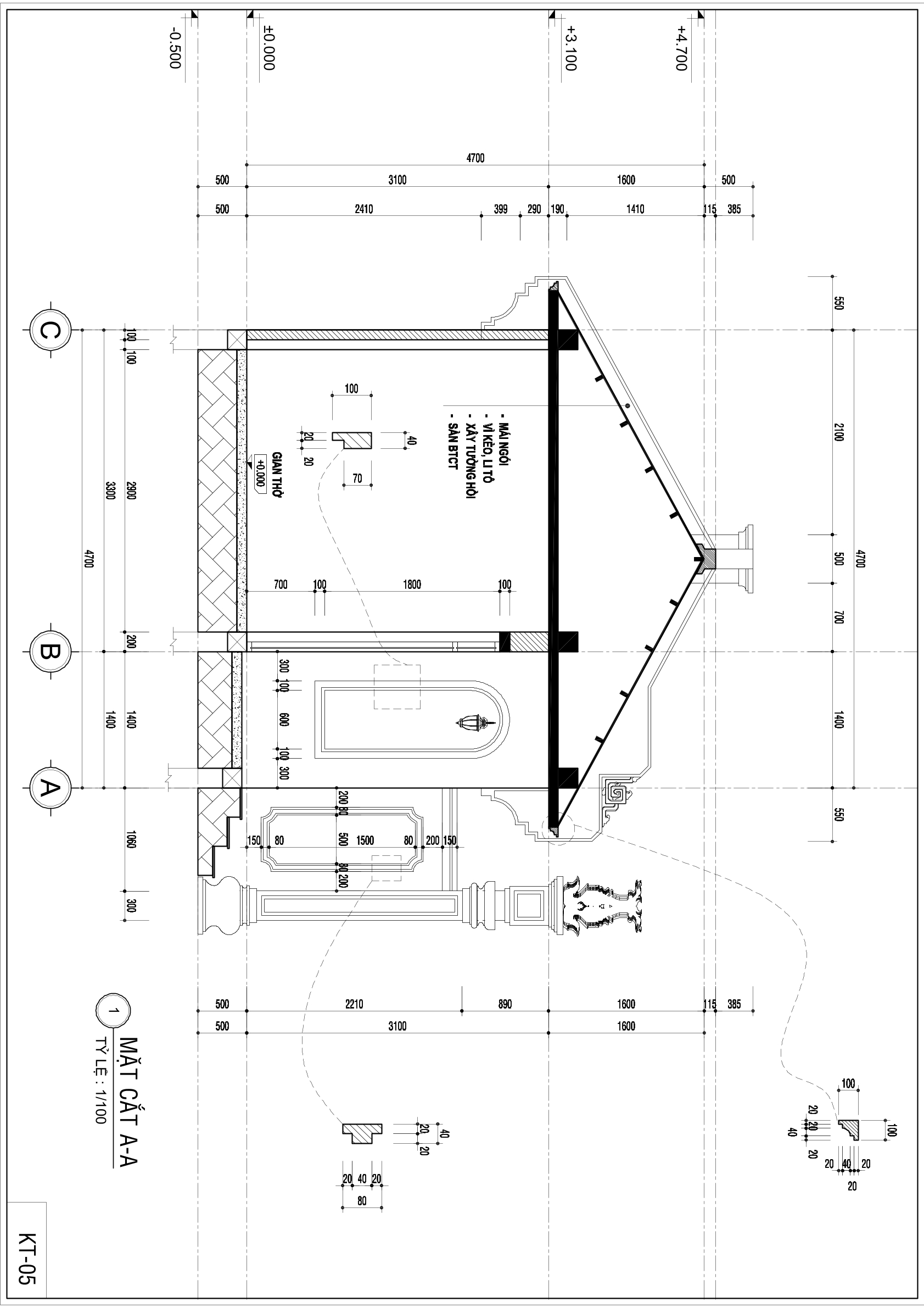
Không chỉ trau chuốt về thẩm mỹ, hồ sơ thiết kế của Xây dựng Thiên Anh còn thể hiện sự nghiêm ngặt, chuẩn chỉ trong tính toán kỹ thuật kết cấu, đảm bảo công trình từ đường trường tồn cùng thời gian:
Hệ khung chịu lực bê tông cốt thép toàn khối: Khác với các công trình tự phát, nhà thờ tổ tại Phú Mỹ được chúng tôi thiết kế hệ thống giằng móng, dầm, cột liên kết thành một khung cứng vững chắc. Các chi tiết neo thép, nối thép đều tuân thủ nghiêm ngặt tiêu chuẩn xây dựng (TCVN), giúp công trình chịu được mọi tải trọng tác động.
Mái lợp ngói trên sàn bê tông đan thép 2 lớp: Đây là một giải pháp thi công cao cấp và vô cùng an toàn. Sàn tầng mái được đổ bê tông với hệ cốt thép đan 2 lớp kiên cố, kết hợp xây tường thu hồi có đổ giằng bê tông đầu tường. Giải pháp này khắc phục hoàn toàn nhược điểm xô ngói, thấm dột của mái kèo gỗ/thép thông thường, đồng thời cách nhiệt cực tốt.
Móng đơn vững chãi: Dựa trên điều kiện địa chất thực tế tại khu vực, công trình sử dụng hệ móng đơn bê tông cốt thép. Mặt cắt móng, mác bê tông và chi tiết giằng móng đều được tính toán tỉ mỉ để triệt tiêu nguy cơ sụt lún.
Hồ sơ bản vẽ minh bạch: Mỗi hạng mục từ hoa văn cột sảnh, cấu tạo tường hồi, đến từng cây thép dầm, thép sàn đều được bổ chi tiết (shop drawing) rõ ràng. Điều này giúp đội thợ thi công chính xác tuyệt đối và giúp gia chủ dễ dàng nghiệm thu trong suốt quá trình xây dựng.

Việc kiến tạo một công trình tâm linh đòi hỏi đơn vị thi công phải am hiểu sâu sắc về kiến trúc truyền thống, tín ngưỡng và phong thủy. Đến với Xây dựng Thiên Anh, quý khách hàng sẽ nhận được:
Sự tư vấn tận tâm: Lắng nghe mong muốn của từng dòng họ để phác thảo nên những không gian mang đậm dấu ấn riêng.
Chuẩn phong thủy: Mọi kích thước đều được đội ngũ kiến trúc sư đo đạc, tính toán chuẩn theo thước Lỗ Ban.
Thi công sắc nét, bản vẽ kỹ thuật chuyên sâu: Bản vẽ kết cấu cực kỳ chi tiết, đảm bảo an toàn tuyệt đối cho công trình.
Tối ưu chi phí: Cân đối ngân sách phù hợp, báo giá minh bạch, cam kết vật tư đúng hợp đồng.
Quý khách hàng, quý dòng họ tại khu vực Bà Rịa - Vũng Tàu và các tỉnh lân cận đang có nhu cầu tư vấn thiết kế, thi công trọn gói nhà thờ tổ, nhà từ đường, vui lòng liên hệ ngay với chúng tôi để được hỗ trợ nhanh chóng nhất!
CÔNG TY TNHH THIẾT KẾ XÂY DỰNG THIÊN ANH
Địa chỉ: 1190 Võ Văn Kiệt, P. Tân Thành, TP. HCM
Địa chỉ cũ: 1190 Võ Văn Kiệt, KP. Suối Nhum, P. Hắc Dịch, TP. Phú Mỹ, BR- VT
Điện thoại: 0903.872.769 - 0938.001.192
Mail: xaydungthienanh2010@gmail.com
Website: xaydungthienanh.com